fbpx

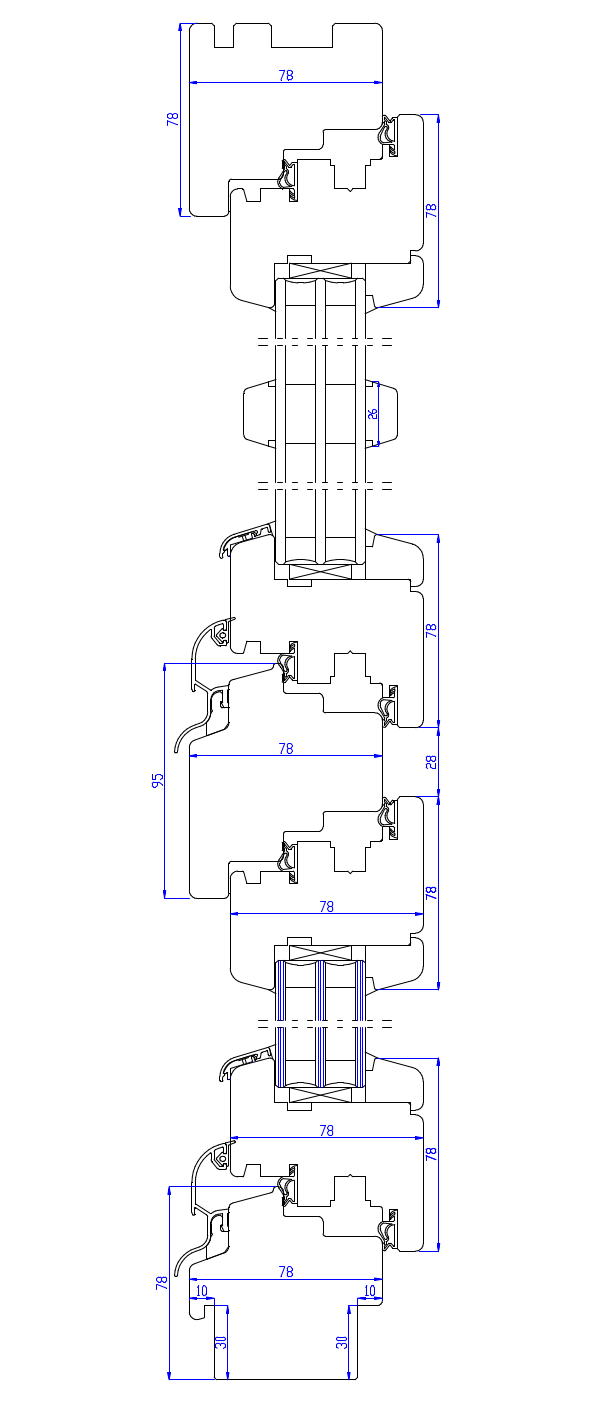
Thermal 78 windows

Windows with increased thermal insulation. The thicker section and 3-pane glazing unit provide nearly 25% better heat transfer coefficient as compared to Basic 68 windows. The windows allow for saving of costs of heating in winter. The wide range of standard colours allows for adjustment of appearance of the windows to every interior decoration and building facade.

The structure

The drip

The aluminium drip on a frame and an additional drip on the wing in white (RAL 9016), silver (C0), brown (C34) or olive (C33). Optionally, drips may be use in any colours from RAL to match window colours.

Drip

on the wing

Drip

on the frame

Paint

4-layer water-based paint system including repellent, primer, intermediate layer and top layer. The rich range of colours with clear tree rings (scumbles) from Teknos Gori or opaque colours from RAL or NCS.

Hardware

Hardware types

Siegenia multi-point lock fittings with trickle ventilation as standard.

Handles

Hoppe Tokyo white (RAL 9016), brown (RAL 8707), old gold (F4), titan (F9), silver (F1).

Opening

Tilt windows (U), turn windows (R), tilt-and-turn windows ( UR), lift-and-slide windows on a low threshold (HS), tilt-and-slide windows (PSK), rotating windows, sliding windows on a low threshold (FS).

Options

Anti-burglary hardware, handle interlock, opening limited, HAU-TAU tilting mechanism enabling tilting of the upper wing from the floor level, a handle with a key or button.

Additional equipment

Glazing bars with the thickness of 8, 18, 26, 45 mm and in the following colours: wooden-like, golden, white, grey or in any RAL colour. Glazing bars put on a wing from outside in the form of a wooden frame that can be easily disassembled for cleaning. Glazing bars glued on the window pane from inside and outside (with an empty space between the panes) with the thickness of 20 to 30 mm. Vienna-style glazing bars composed of a glued bar and an aluminium frame or thermal frame mounted inside the panes (without an empty space between joints).

Glass

anti-burglary glass

ornamented glass

hardened glass

reflective glass

safe glass

venetian mirror

soundproof glass

anti-UV glass

Vents

Pressure, manual, hygro-controlled vents that regulate air flow automatically.

Thermal 78 window
Technical drawing

Certificates

Declaration of performance 

 

Korzystając z naszej strony, wyrażasz zgodę na wykorzystywanie przez nas plików cookies . Zaktualizowaliśmy naszą politykę przetwarzania danych osobowych (RODO). Więcej o samym RODO dowiesz się tutaj.